Die Wohnung wurde 2019 renoviert. Es entstand ein neues Gästebad mit Dusche, eine Walk-in-Dusche im Master-Badezimmer sowie neue Waschbecken wurden hinzugefügt
3 Zimmer, Galerie als Arbeits- oder Gästezimmer mit Gästebett, 1 Diele voll ausgestattete Einbauküche aus Eiche mit Herd und Ofen von Gaggenau Separater Hauswirtschaftsraum
1 Bad mit kleinem Austrittsbalkon, Gästebad mit Dusche)
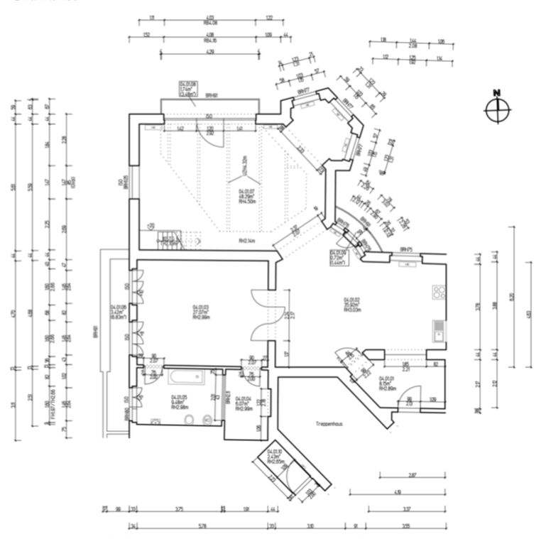
Aus zwei Eigentumswohnungen entstand bei der Sanierung vor ca. 10 Jahren diese individuell geschnittene, sehr helle und geräumige Wohnung. Im Mittelpunkt der Wohnung befindet sich das Wohnzimmer, das sich nach oben hin zur Galerie öffnet und auch mit der Essküche über einen Durchgang verbunden ist.
Viel Licht und Sonne scheint hier von allen Seiten herein und eine Erkernische sowie der Balkon sorgen für eine Gemütlichkeit.
Die fünf Meter hohe Decke des Wohnzimmers geben der Wohnung eine helle, weite und luftige Atmosphäre. Vom Balkon und durch das riesige Panoramafenster hat man einen herrlichen, unverstellten Blick auf das Charlottenburger Schloss.
Das Schlafzimmer ist mit einem Ensuite Bad, einer Ankleide und dem Balkon eine anspruchsvolle kleine Oasefür Ruhe und Erholung.
Die Möbel sind Maßanfertigungen des New York/Berlin Architekten Sam Chermayeff und wurden mit Sorgfalt für die Wohnung ausgewählt.
Alle Fenster sind mit Bauhaus-Griffen ausgestattet und die Lichtschalter sind aus der Bauhaus Berker Serie von 1930. So ist nicht nur der Schnitt, die Lage und die Aussicht der Wohnung etwas sehr Besonderes, sondern auch ihre Einrichtung.






















